采暖通风与管道工程识图简要

发布时间:2020-12-03

来源:暖通南社

阅读次数:2699

采暖工程图的组成:

采暖平面图:主要表示建筑物各层的采暖设备和管道的平面布置。

采暖系统图:表明整个采暖系统的设备,附件和干、立、支管在空间的布置及其相互关系。

采暖详图:包括标准图和非标准图;设计、施工时,通常采用标准图。

采暖施工图:采暖平面图,采暖系统图,采暖详图,图纸目录,主要设备材料表,设计施工说明。

采暖工程图的识读方法:

识图顺序:先采暖平面图→再对照采暖平面图读采暖系统图→然后识读详图。

1、采暖平面图的识读顺序:

先底层、中间层、顶层的采暖设备→再由热力入口起,顺序识读汽干、立、支管及凝水支、立、干管。

2、采暖系统图的识读顺序:

从热力入口起,延气流的方向识读。

供汽总管→供汽干管→各供汽立管→各组散热器的供汽支管→各组散热器的凝水支管→各凝水立管→凝水干管→凝水总管。

详图:对平面图、系统图标准图中所缺的接点图局部。

先立、干管的连接→再散热器与支管的连接→然后膨胀水箱等设备与干管的连接。

3、办公楼采暖平面图的阅读:

采暖通风与管道工程识图简要

通风工程图的组成:

通风工程图:

通风平面图,通风管道、封口和通风设备在建筑物的平面布置。

通风剖面图,设备、附件等在垂直方向上的布置,以及在垂直方向上通风管道的走向和标高等。

通风系统图,表示整个通风系统在空间的布置。

主要反映通风管道的走向以及设备、附件和管件的相对位置。

详图,一般为标准图。-暖通南社整理编辑。

通风工程图的识读方法:

识读顺序:先通风平面图,剖面图再对照通风平面图,剖面图识读通风系统图然后识读详图。

采暖通风与管道工程识图简要

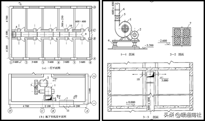
办公楼通风平面图与剖面图对照:

采暖通风与管道工程识图简要

办公楼通风平面图的阅读:

采暖通风与管道工程识图简要

由一层平面图得:

①该通风系统有双层百叶风口10个,分别设在沿B、C轴各通风房间的墙上。

②送风干管为一条600×400的矩形风管,布置在B、C轴之间。

③送风支(短)管为10条300×250的矩形风管,每条送风支(短)管的一端接送风干管;另一端接双层百叶口的进口。

④带导风叶片的矩形弯头两个,位于送风干管的末端。

地下室机房平面图:

采暖通风与管道工程识图简要

从地下室内通风机房平面图中可以看出,在①、②轴之间设有心通风机、电动机一台;在A、B轴之间的山洞口,设有泡沫塑料过滤器。

办公楼通风剖面图阅读:

从1-1剖面可以看出,在离心通风机的底座下安装有减振器;在离心通风机的出口处设有方形百叶启动阀和帆布短管;其上是600×400的矩形送风主立管。

从2-2剖面图可以看出,在山洞口,标高-2.600处安装泡沫塑料过滤器。

采暖通风与管道工程识图简要

从3-3剖面可以看出,600×400的矩形送风主立管,从地下室通风机房垂直向上至一层,与标高为3.000的送风干管相接,在送风干管的两侧,分别接出送风支管至双层百叶风口。

采暖通风与管道工程识图简要

办公楼通风系统图阅读:

采暖通风与管道工程识图简要

从图中可以看出,在离心通风机的出口处是方形百叶启动阀和帆布短管,其上是送风主立管,在标高3.000处以90弯头与送风干管相接。在送风干管的两侧,以送风支管分别与各双层百叶风口相接。

管道工程基本知识:

公称直径的概念及符号表示:

管子,管件和管路附近的公称直径(也叫公称通径。名义直径)既不是实际内径,也不是实际外径,而是称呼直径,又称平均外径。

例如:公称直径25m的白铁管实测其内径数值为25.4mm左右,表示为DN25。

公称直径,便于管子与管子,管子与管件,管子与管路附件的连接,保持接口的一致。

所以,无论管子的实际外径或内径多大,只要公称直径相同的就能相互连接并且具有互换性。

公称直径指标准化以后的标准直径,以DN表示,单位mm,例如:DN50,表示公称直径为50mm。

公称压力、试验压力、工作压力的概念、符号及关系:

1、公称压力:

制品在基准温度下的耐压强度称为公称压力。符号pn表示。如公称压力为1.6MPa.可记为PN1.6。

2、试验压力:

通常指常温下的耐压强度。符号ps表示。

如实验试压力3.OMPa用ps3.0表示。

3、工作压力:

一般是指给定温度下得(工作)压力。符号Pt表示。

如介质最高温度为200℃时,工作压力为1.OMPa。用p201.0表示。

4、公称压力、试验压力和工作压力的关系:Ps>PN≥P1。

管道分类:

采暖通风与管道工程识图简要

水暖管道,属于低压。公称压力<2.5MPa。

几种特定介质管道:压缩空气管道,热力管道,燃气管道,乙炔管道。

管道在介质压力作用下,应满足以下主要要求:

①具有足够的机械强度;

②具有可靠的密封性。

按介质温度分类:

采暖通风与管道工程识图简要

管道在介质温度作用下,应满足以下主要要求:

①管材耐热的稳定性;

②管道热应变的补偿;

③管道的绝热保温。

九种管件:

1、管接头也称管箍,束结,用于公称直径相同的俩根管子的链接。

采暖通风与管道工程识图简要

2、活接头也称由任,由于需要拆装处的一根公称直径相同的管子链。

3、弯头一般为90°,分为等径和异径弯头两种,用来链接两根公称直径相同或不同的管子,并使管路转90°弯。

4、三通分为等径和异径三通两种,用于直管上接出支管。

采暖通风与管道工程识图简要

5、四通分为等径和异径四通两种,用于连接4根垂直相交的管子。

采暖通风与管道工程识图简要

6、大小头也叫异径管,用于连接两根公称直径不同的管子。

采暖通风与管道工程识图简要

7、补心也叫内外螺纹管接头,起作用与大小头相同 。

采暖通风与管道工程识图简要

8、外接头也叫双头外螺丝,用于连接两个公称直径相同的内螺纹管件或阀门。

9、丝堵也叫管塞,外方堵头,用于赌塞管道,常与管接头,弯头,三通等内螺纹管件配合用。

采暖通风与管道工程识图简要

铸铁管的材料及管件:

1、给水铸铁管及其管件

1)管材

①材质:是用灰口铸铁铸造的,出厂前内外表面涂防锈沥青一层。

②分类:承插式和法兰式,常用承插式。

③场合:高压的用于室外给水管道,中低压的用于室外燃气,雨水管道。

2)管件,给水铸铁管的管件,也是用灰口铸铁铸造的。其常用的有正三通、四通、大小头、90°和45°弯头等。

3)管材、管件的规格表示:给水铸铁管及其管件的直径,以公称直径表示。

采暖通风与管道工程识图简要

2、排水铸铁管及其管件

1)管材

①材质:排水铸铁管通常是用灰口铸铁浇铸而成,其管壁较薄,承口较小。出厂之前管子内外表面不涂刷青漆。

②分类:接口形式只有承插式一种。

③场合:排水铸铁管主要用于室内生活污水、雨水等重力流的管道。

2)管件,排水铸铁管的管件,也是用灰口铸铁浇铸而成其种类和式样比较多,常用的有斜三通、斜四通、出户大弯、清扫口、立管检查口、存水弯等。

3)管材、管件的规格表示,排水铸铁管及其管件的直径,以公称直径表示。

采暖通风与管道工程识图简要

钢管与通风管常用法兰:

法兰(Flange)又叫法兰盘或突缘。法兰是使管子与管子相互连接的零件,连接于管端。法兰上有孔眼,螺栓使两法兰紧连。法兰间用衬垫密封。法兰分螺纹连接(丝接)法兰和焊接法兰及卡套法兰。

采暖通风与管道工程识图简要

管道工程用的法兰分为:钢管(道)法兰,通风管(道)法兰。

采暖通风与管道工程识图简要
采暖通风与管道工程识图简要

螺栓与螺帽种类、应用场合及规格表示:

采暖通风与管道工程识图简要
采暖通风与管道工程识图简要

板材介绍:

常用的板材有金属板材和非金属板材两种。

采暖通风与管道工程识图简要

非金属板材:常用的非金属板材有玻璃钢板、硬聚氯乙烯塑料两种。这两种非金属钢材,主要用于排除含腐蚀性介质的通风系统中。

型钢的应用场所与规格表示:

采暖通风与管道工程识图简要
采暖通风与管道工程识图简要

垫片介绍:

1)垫片材质的选用依据

管道工程中,法兰垫片的材质要根据管内输送介质的性质、工作压力、温度选用。

2)钢管道法兰常用垫片

钢管道法兰常用垫片的材质、种类和适用场合见表。垫片厚度1.5~3mm(其中给、排水系统垫片厚度可3~5mm)。

采暖通风与管道工程识图简要

本文来源于互联网,暖通南社整理编辑。

联系电话:021-56795109

手机:18149752715

QQ:1114325507(同微信号,加时注明:地区-真实姓名-职业)

工作时间:8:30-18:00(节假日除外)

关注微信公众号

今日头条暖通南社号

沪ICP备12042282号-2 ©2012-2021暖通南社版权所有